Triton Naval Architects
   
 
 
 
 
 
 
 
 
 
 
 
 
 


services / ship design / tug & barges

Inshore and Inland Tugs and Barges

Two pusher tug / integrated barge sets have been designed, the smaller of the two being built by Southern Engineering in Mombassa Kenya for operation on Lake Victoria.

The 2nd, a larger set, with a 2m tug, and 45m barge, capable of carrying some 600t deadweight never reached fruition, due to the untimely passing of Mr Rowley Morgan, partway through the project. This design, complete with its exisitng full specification, can be used either as a ready design for similar applications or further developed (customised) for differing applications.

Both designs are for very low draft, and thus both use the twin screw, tunnel thruster concept.

 




Triton Naval Architects
No. 8 Foregate Square, Harbour Rd
Foreshore, Cape Town, SOUTH AFRICA
Tel: +27 21 418 2090 | Fax: +27 21 425 2722 | Email: triton@triton.co.za

By Triton Naval Architects


 
 

photos

     
 

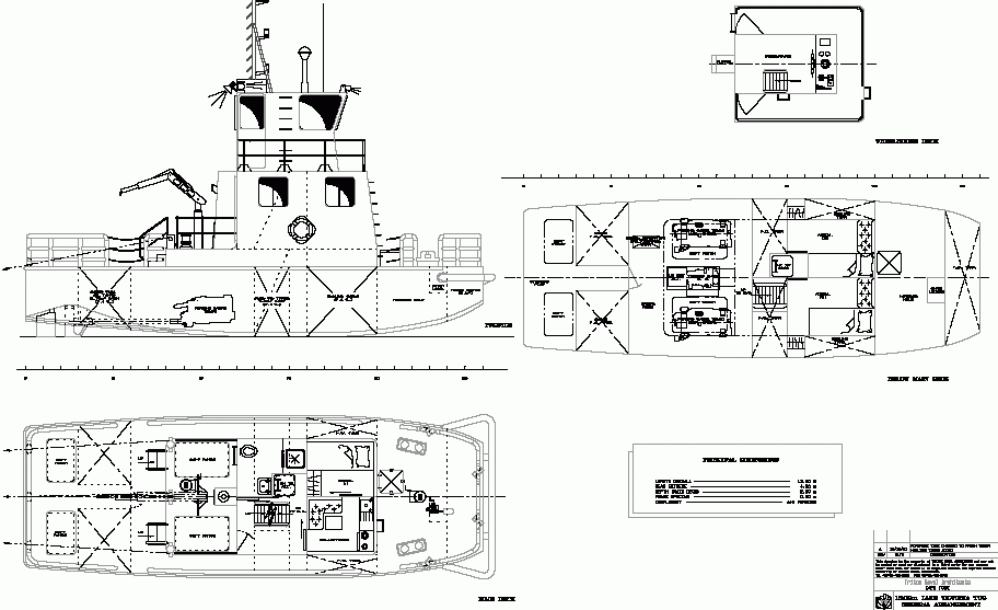
GA of the 13m Lake Victoria Pusher Tug, built by Southern Shipyards in Mombassa, Kenya (Click on image for larger view)

 
     
 

GA of the 20m Pusher Tug, designed for operation in Zaire. (Click on image for larger view)